Geschäft Vermietung in Koksijde

Zonzicht - Handelspand

€ 2.950
  • TOP-Lage
  • Ausstattung selbst zu bestimmen
  • maximale Sichtbarkeit

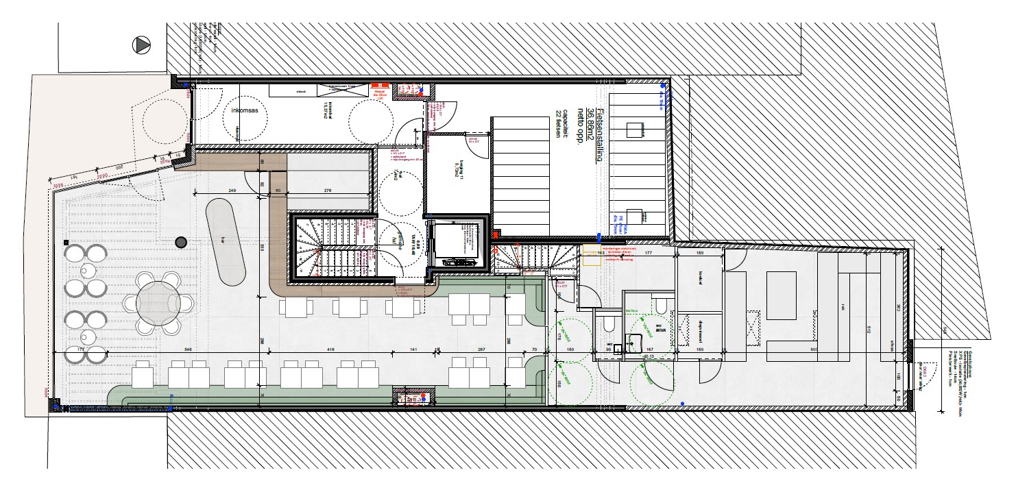
Gewerbeimmobilie zu vermieten in der Residenz Zonzicht – Top-Lage an der Zeelaan in Koksijde. In der Nähe des Rathauses, der öffentlichen Verkehrsmittel und des Meeres gelegen: die perfekte Lage!

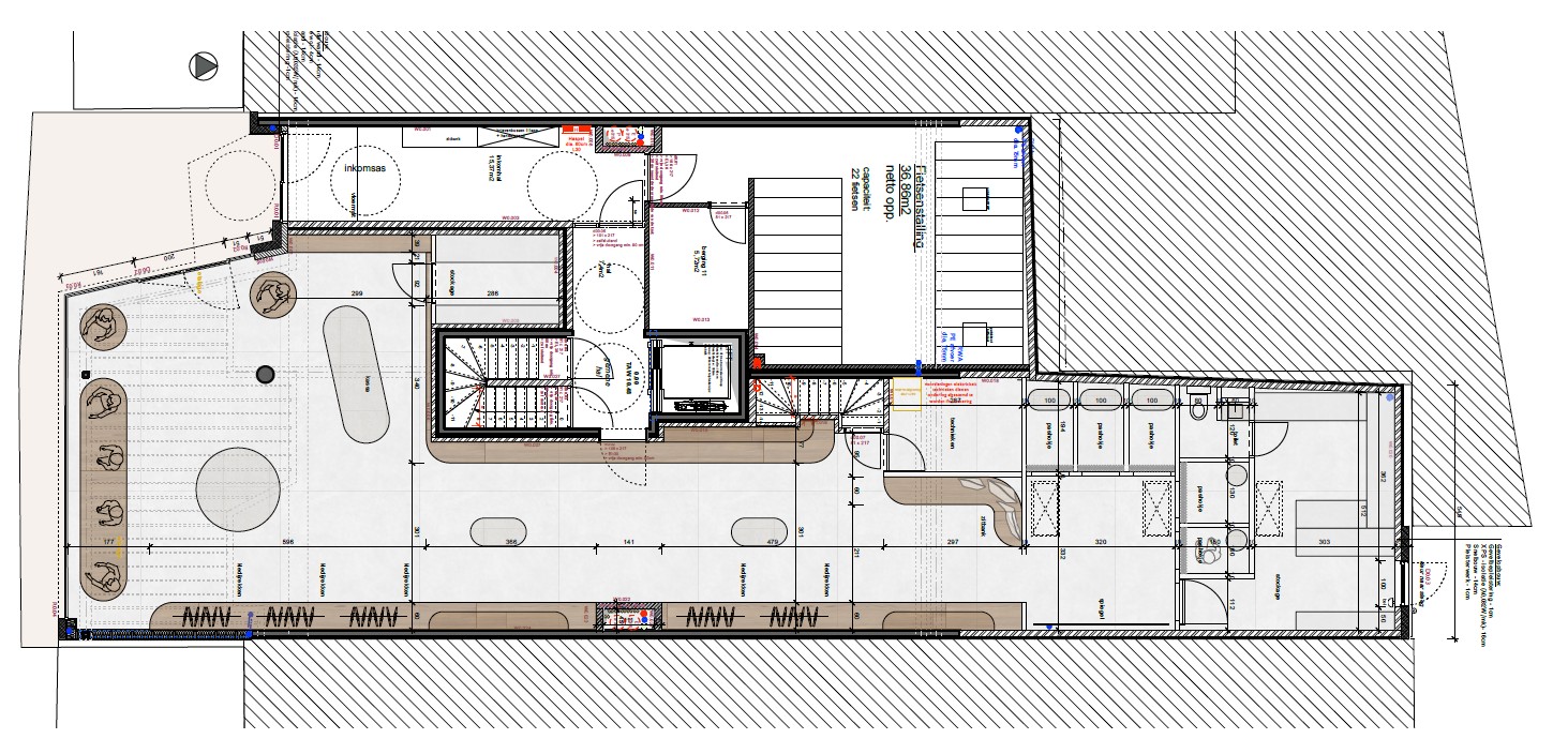
In der stilvollen Residenz Zonzicht vermieten wir eine Gewerbefläche von 183,91 m² (Bruttofläche) an der Zeelaan in Koksijde. Dank der großen Fensterfronten genießt das Gebäude eine hohe Sichtbarkeit und viel Tageslicht, ideal für eine attraktive Schaufensterauslage. Das Gewerbeobjekt verfügt über einen geräumigen Keller von 13,7 m² mit direktem Zugang über eine Innentreppe. 

Die Gewerbeimmobilie wird im Rohbauzustand vermietet, was bedeutet, dass Sie die Freiheit haben, die Einrichtung und Ausstattung ganz nach Ihren geschäftlichen Bedürfnissen zu gestalten. Dies bietet Ihnen die einmalige Gelegenheit, eine Gewerbefläche zu schaffen, die perfekt zu Ihrem Konzept und Ihrer Marke passt.

Nahezu alle gewerblichen Aktivitäten sind zulässig:

  • Teestube, Kaffeehaus oder Konditorei
  • Handel mit Luxusartikeln (Kleidung, Schmuck, Parfümerie, Bücher, Weinhandel, ...)
  • Blumenladen
  • Freier Beruf
  • Bank- und Versicherungsbüro, Reisebüro oder Immobilienbüro
  • Geschäft für elektrische Haushaltsgeräte und verwandte Produkte
  • ...
Die Residenz Zonzicht befindet sich derzeit noch im Bau, das Rohbaugebäude wird im Frühjahr 2026 verfügbar sein. 

Suchen Sie eine Gewerbeimmobilie in Toplage, um Ihr Unternehmen im Herzen von Koksijde zu gründen? Kontaktieren Sie uns für weitere Informationen oder eine Besichtigung vor Ort.

Gesamtfläche 198 m²
Wohnfläche 184 m²
Jahr 2026

Zusammenstellung

  • Geschaftshaus
  • Keller
Sonnig • Zentrum

Anschlüsse & Einrichtungen

Elektriciteit
Internet
Kanalisation
Stadswasser
Telefon
Verteilung

Allgemeine Informationen

Baugenehmigung Ja
G-Punktzahl A
P-Punktzahl A
Überschemmung empfindlich Nicht empfindlich gegen Überschwemmungen
Abgegrenzte Zone Nicht zutreffend
Möbliert Nein

Diese Website verwendet Cookies, die ein optimales Nutzererlebnis gewährleisten. Mit der Nutzung dieser Website erklären Sie, dass Sie damit einverstanden sind.